
City of Brea
Planning Commission Communication
A. Brea Plaza Shopping Center Apartment Project (Brea Plaza Living)– General Plan Amendment No. 2024-01, Zone Change No. 2024-01, Density Bonus No. 2024-01, Precise Development No. 2024-01 and Conditional Use Permit Nos. 2024-03, 2024-04, and 2025-05.
A request to allow construction of a new residential development consisting of a 120-unit apartment building atop a parking structure at 1639 East Imperial Highway.
Meeting
Tuesday, March 11, 2025, 6:00 PM
Agenda Group
PUBLIC HEARINGS Item: 3A.
EXECUTIVE SUMMARY
The Applicant, Jahn Nguyen with Architects of Orange, is requesting approvals of General Plan Amendment (GPA) No. 2024-01, Zone Change (ZC) No. 2024-01, Density Bonus (DB) No. 2024-01, Precise Development (P-D) No. 2024-01, and Conditional Use Permit (CUP) Nos. 2024-03, 2024-04, and 2025-05 to allow construction of a new residential development consisting of a four-story, 120-unit apartment building with a private terrace atop a two-level parking structure with 95 spaces, a surface parking area with 53 parking spaces, modification to the off-street parking requirements based on a shared parking analysis and a comprehensive sign program amendment at 1639 East Imperial Highway, in the General Commercial (C-G) Zone with a Precise Development (P-D) Overlay.
RECOMMENDATION
Staff recommends that the Planning Commission adopt a resolution (Attachment A) recommending that the City Council take the following actions:
- Approve the Addendum to the Final Environmental Impact Report (FEIR) for the Brea Plaza Expansion Project (EIR SCH No. 2020079022 Addendum No. 1) pursuant to California Environmental Quality Act (CEQA) Guidelines Section 15164;
- Adopt resolutions approving the following entitlements, based on findings and conclusions, subject to the recommended conditions of approval (Attachment B):
- GPA No. 2024-01, to modify the Project site’s General Plan land use designation from General Commercial to a Mixed Use II land use designation;
- DB No. 2024-01, to utilize the following Density Bonus provisions: 1) Density Bonus parking standards; 2) one Density Bonus concession/incentive for exemption from City's Art in Public Places requirement; 3) five Density bonus waivers of development standards, which includes the increase of the maximum height to 64’-4”, reduction of the rear setback to 3’-6”, reduction of common open space requirement to 49.75 square feet per dwelling unit, reduction of the private open space requirement to 53 square feet per dwelling unit and waiver of the required landscaping for building perimeter; and 4) one additional incentive under BCC Chapter 20.40 requesting deferred payment of development impact fees to certificate of occupancy;
- P-D No. 2024-01, to construct a four-story, 120-unit residential building atop a two-level parking structure; and
- CUP Nos. 2024-03, 2024-04, and 2025-05, authorizing the following:
- Multi-family dwelling land use in the MU-II zone,
- Modifications to the off-street parking requirement through a shared parking analysis for a mixed-use project, and
- Comprehensive sign program amendment to the Brea Plaza Shopping Center Comprehensive Sign Program to add a freeway-oriented wall sign.
- Adopt an ordinance approving ZC No. 2024-01, to modify the Project site from General Commercial (C-G) Zone with a Precise Development (P-D) Overlay to a Mixed-Use II (MU-II) Zone.
BACKGROUND
Project Location
The Project site, commonly known as Brea Plaza Shopping Center (Brea Plaza), is approximately 15.58 acres and is bounded by Associated Road to the east, Imperial Highway to the south, and 57 Freeway to the west. The Project construction area is approximately 1.7 acres and is located in the northwest portion of the site. Figure 1 below shows the Project construction area outlined in yellow, with the boundary of Brea Plaza highlighted in orange. Brea Plaza features a mix of retail, restaurants, and service-oriented businesses. The Project site has a General Plan Land Use designation of General Commercial and zoning designation of General Commercial (C-G) Zone with a Precise Development (P-D) Overlay. The surrounding land uses and zoning designation are shown in Tables 1 and 2 below.
TABLE 1 – SURROUNDING LAND USES
|
North |
Office use and single-family residences |
|
East |
Single-Family residences (Across Associated Road) |
|
South |
Commercial uses in the City of Fullerton (Across Imperial Highway) |
|
West |
57 Freeway and Brea Mall |
TABLE 2 – SURROUNDING ZONING DESIGNATIONS
|
North |
General Commercial (C-G) with a Precise Development (P-D) Overlay; and R-2 Multi-Family Residential (Across Greenbriar Lane) |
|
East |
R-1 Single Family Residential (R-1) (Across Associated Road) |
|
South |
City of Fullerton (Across Imperial Highway) |
|
West |
Mixed-Use I (MU-I) and Major Shopping Center (C-C) (Across 57 Freeway) |
Brea Plaza is currently developed with 158,691 square feet of commercial buildings, including restaurants, specialty stores, personal services, and a grocery store, along with surface parking areas with 754 parking spaces and associated landscaping, lighting, and monument and wayfinding signs. Ingress and egress to the site is provided by two driveway approaches off Imperial Highway and two driveway approaches off Associated Road. The aerial view of the Project site is Figure 1 below.
FIGURE 1 – AERIAL VIEW OF THE PROJECT SITE

The Technical Background Summary and the Vicinity Map are provided in Attachments C and D, respectively.
Entitlement History
- On November 25, 1975, the Planning Commission adopted Resolution No. PC 305-75, approving Precise Development No. 19-75 to allow the construction of Brea Plaza. Resolution No. PC 305-75 also certified an associated Environmental Impact Report (EIR) pursuant to CEQA.
- On December 28, 1976, the Planning Commission adopted Resolution No. PC 405-76, approving Precise Development No. 20-76 to allow four commercial buildings within the Brea Plaza. Two of these buildings are presently occupied by Buca Di Beppo and Lucille’s BBQ, while the other two buildings have been demolished.
- On February 12, 1991, the Planning Commission adopted Resolution No. PC 91-8, approving CUP No. 90-30 to establish a sign program for Brea Plaza.
- On May 11, 1993, the Planning Commission adopted Resolution No. PC 93-26, approving Precise Development No. 93-1, CUP No. 93-8, and adopting Negative Declaration No. 93-6 to allow the renovation of the Brea Plaza, including the addition of tenant space, demolition of buildings, landscaping and lighting improvements, and redesign of the parking lot for an increase of 117 parking spaces, with 23 percent compact spaces. The approval included a new comprehensive sign program for the site.
- On October 11, 1994, the Planning Commission adopted Resolution No. PC 94-47, approving amendments to Precise Development No. 93-1, CUP No. 93-8, and Negative Declaration No. 93-6. Amendments consisted of the addition of a fifth screen at the movie theater, a reduction to the building floor area to expand the parking lot and add 14 parking spaces, and a comprehensive sign program amendment.
- On June 10, 2008, the Planning Commission adopted Resolution No. PC 08-12, approving Precise Development No. 08-01, CUP No. 08-03, and adopting Mitigated Negative Declaration No. 08-01 to expand the Brea Plaza with two new buildings, including a drive-through food use (Chick-fil-A Restaurant), the demolition of three structures, and allow an improved parking lot over the Loftus Channel.
- On December 8, 2009, the Planning Commission adopted Resolution No. PC 09-29, approving Precise Development No. 09-01, CUP No. 09-14, and an addendum to Mitigated Negative Declaration No. 08-01 to allow the reconfiguration and partial demolition of two buildings, three new buildings including two drive-thru restaurants, and a new sign program for the site. The three new buildings allowed under this approval were: 1) the Chick-fil-A building with drive-through (carry-over from 2008 approval), 2) multi-tenant building with Panera Bread with drive-through, and 3) multi-tenant building with FedEx Office.
- 2019 Brea Plaza Expansion Project (Previous Project)
- On April 19, 2022, the City Council certified the Final Environmental Impact Report (certified FEIR) (State Clearinghouse [SCH] #2020079022) for the Previous Project by adopting Resolution No. 2022-030, and approved Precise Development No. 2021-03 (Resolution No. 2022-031) for the Previous Project, which included an approximately 187,477-square-foot mixed-use building comprising 189 residential units, 21,355 square feet of commercial space, and a parking garage. In addition, the City Council also approved a proposed modification of off-street parking requirements through Conditional Use Permit No. 2021-18 (Resolution No. 2022-032).
- On May 3, 2022, the City Council adopted Resolution No. 2022-033 and Ordinance No. 1226 for the Previous Project. Resolution No. 2022-033 approved General Plan Amendment No. 2021-04 to change the land use designation of the site from General Commercial to Mixed Use II). Ordinance No. 1226 approved Zone Change No. 2021-02 to change the zoning designation of the site from C-G to MU-II.
- On August 16, 2022, the City Council adopted Ordinance No. 1231 repealing Ordinance No. 1226 to rescind approval of Zone Change No. ZC 2021-02 and approved Resolution No. 2022-062 repealing Resolution Nos. 2022-031 and 2022-032 to rescind approval of Precise Development No. 2021-03, Conditional Use Permit No. 2021-17, and Conditional Use Permit No. 2021-18. This action rescinded all approvals for the planning entitlement applications associated with the Previous Project and nullified the Previous Project. However, Resolution No. 2022-030, which certified the FEIR, was not repealed, and as such, the certification of the certified FEIR is still in place.
- On August 9, 2023, the Brea Planning Commission approved Precise Development No. 2022-02 (PC Resolution No. 2023-08) to allow the demolition of an existing 21,460-square-foot movie theater (Building F) and remodeling of Buildings E & G for retail ground floor use and new second floors for office use with outdoor patios.
- Private agreement: Brea Plaza and the Mercury Insurance property to the north are currently under an existing memorandum of understanding (MOU) that provides an additional 180 parking spaces during normal business hours, approximately 500 surface spaces after 5:00 p.m. and on weekends. The MOU expires on April 15, 2026, unless voluntarily terminated by both parties sooner.
- Current proposal: On March 19, 2024, the Applicant filed the planning applications for the Project, which included the aforementioned entitlements.
PROJECT DESCRIPTION
The Project proposes the construction of an approximately 118,620-square-foot, four-story apartment building with 120 residential units above a two-story parking structure containing 95 spaces and parking lot reconfiguration to add a surface parking area with 53 parking spaces. The project also includes the demolition of an existing 7,500 square-foot freestanding restaurant building (currently occupied by Buca di Beppo) and the construction of a new 5,000 square-foot standalone restaurant building, resulting in a reduction of 2,500 square feet of commercial building square footage. To accommodate the new residential building, the Project would require a General Plan Amendment to modify the Project site’s General Plan designation from General Commercial to Mixed Use II, as well as a Zone Change to modify the zoning designation from C-G with a P-D Overlay to MU-II.
Apartment Building
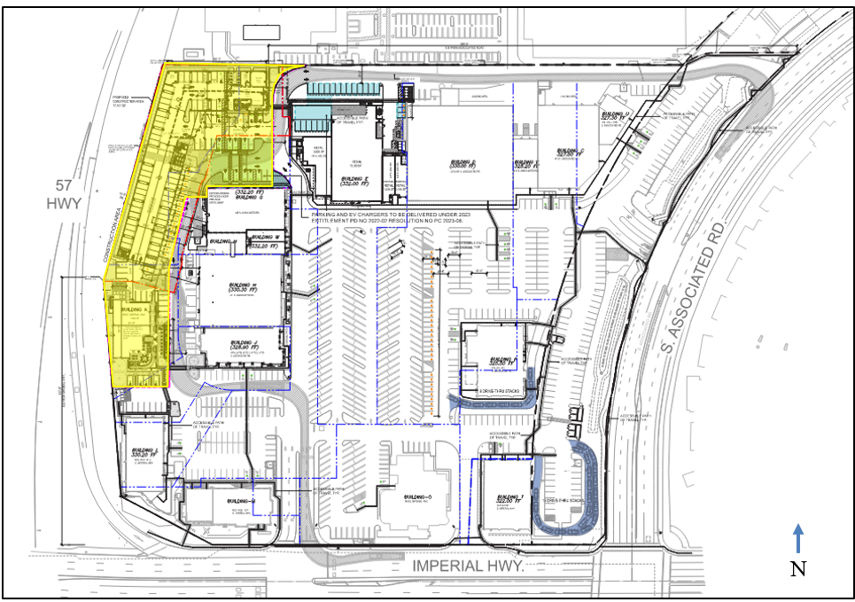
The Project proposes a four-story apartment building with 120 units atop the two-story parking structure. The proposed building would be located on the northwest corner of Brea Plaza, along the west and north property lines. Vehicular access to the parking structure would be provided through two 26-foot wide driveways providing accessat the structure’s southern and eastern elevations. The access driveways into the parking structure include dedicated directional lanes providing ingress and egress. The Project site plan is shown in Figure 2 below:
FIGURE 2 – PROPOSED SITE PLAN

The ground floor of the parking structure would include a leasing office lobby, a mail room, and a bike room. The dwelling units would occupy the entire building above the two-story parking structure. The proposed building would be six stories, with the building height of 64’-4” to the top of the roof (68’-4” to the top of the parapet).
Unit Breakdown
Table 3 provides a breakdown of the proposed 120 residential units ranging from studio to two-bedroom apartment units. The City’s Affordable Housing Ordinance (BCC Chapter 20.40) requires a sliding scale percentage of units to be set aside for affordable units depending on the provided affordability level of the required units, and the Project would adhere to this requirement by providing six extremely low-income affordable dwelling units.
Table 3: Residential Unit Summary
|
Unit Type |
Standard |
Affordable |
Total |
|
Studio |
20 |
1 |
21 |
|
One-Bedroom |
45 |
2 |
47 |
|
Two-Bedroom |
49 |
3 |
52 |
|
Total |
114 |
6 |
120 |
In addition to dwelling units, the proposed building would consist of an outdoor terrace, residential amenity room, and fitness center on the sixth floor, in addition to private balconies included in each unit. The proposed balconies and outdoor terrace would provide a portion of private and common open space as required by BCC Section 20.258.020, and is shown in sheets 13 and 16, of the attached Project Plans (Attachment E).
Building Design
The architectural style of the apartment building is contemporary. The new residential development is designed to blend with the recent renovations of the Brea Plaza commercial spaces, maintaining a high-quality aesthetic that aligns with the overall modernization of the area. The design includes contemporary elements such as smooth stucco finishes, metal and wood panels, glass railings, and a combination of different surface textures to enhance the visual appeal. Additionally, the building incorporates elements like green walls and varied façade depths to create a dynamic and visually engaging structure.
FIGURE 3 – APARTMENT BUILDING RENDERINGS

Internal View from Brea Plaza of Proposed Southeast Apartment Elevation

57 Freeway View of Proposed Northwest Apartment Elevation
Parking
The Project consists of a two-story, 23’-4” tall, podium parking structure containing 95 spaces along with a 53-space surface parking area. The Project would also provide 16 electric vehicle charging stations distributed throughout the parking structure. With the Project, a total of 789 parking spaces would be provided at Brea Plaza, which is a 12 parking space increase from the existing parking space count. Strict application of BCC Table 20.080.040.D would require 1,115 parking spaces (873 spaces for commercial uses and 242 spaces for the residential use). However, because the Project is providing six extremely low-income units, the Applicant requested, and is entitled, to utilize Density Bonus parking provisions for the proposed apartment building. As such, the total required parking for Brea Plaza is 1,019 parking spaces (873 spaces for commercial uses and 146 spaces for residential use), which is 230 spaces more than the provided parking.
As allowed by BCC Section 20.08.040.G, the Applicant submitted a parking demand study (Attachment F), prepared by LSA Associates, Inc. (LSA) to address the parking shortfall. The parking demand study (Parking Study) analyzed the Project site’s peak parking demand with the Project to determine the Project site’s true parking demand to assess whether the proposed 789 parking spaces could accommodate the parking demand of Brea Plaza. The Parking Study surveyed the existing shopping center and similar apartment buildings with unreserved residential parking to forecast realistic future parking demand. In addition, the Parking Study analyzed the shared parking nature of the Project site. When considering the effects of shared parking, peak parking demand is anticipated to be 578 on a typical weekday, 720 on a typical weekend, 663 on a December weekday, and 788 on a December weekend. This peak parking demand could be accommodated within the on-site parking supply and only comes close to the parking supply for a brief period on weekends during peak December conditions. While the Project requests to utilize Density Bonus parking standards, this requirement was not used to determine the operational parking demand. Therefore, as shown in Table 4 below, the 789 parking spaces provided are sufficient to accommodate the parking demand of the Project site.
TABLE 4. PARKING ANALYSIS
|
|
Required Parking Spaces (under Density Bonus Provision) |
Highest Anticipated Parking Demand per Parking Study |
Provided Parking Spaces |
Surplus / Shortfall |
|
Number of Parking Spaces |
1,019 |
788 (December weekend) |
789 |
+1 |
Density Bonus Law Requests
Density Bonus Law is a State mandate that allows housing projects that meet the requirements of the State law to receive an increase in maximum density permitted and other benefits, such as incentives/concessions (Incentives) and reduction/waivers of development standards (Waivers), as a matter of right. The intent of the Density Bonus Law is to facilitate the development of affordable housing and to implement the goals, objectives, and policies of the cities’ Housing Elements. Consistent with State Law, the City’s Affordable Housing Ordinance (BCC Chapter 20.40) also provides for additional incentives for flexible development standards when associated with the production of affordable housing units. A qualified housing development may utilize Incentives and Waivers from both the State Density Bonus Law and the City’s Affordable Housing Ordinance, in which the City must grant the requested Incentives and Waivers.
As the Project includes six affordable units for extremely low-income households (five percent of the total units), it qualifies to utilize the State Density Bonus Law provisions. As proposed, the Project is eligible for 20% increase in maximum density and reduced parking standards, along with one Incentives and unlimited Waivers. In addition, through the City’s Affordable Housing Ordinance, the Project is eligible for four additional incentives. Although the Applicant is not proposing to exceed the maximum allowable density for the Project, the Applicant is proposing to utilize: 1) Density Bonus parking standards; 2) one Density Bonus Incentive; 3) five Density Bonus Waivers; and 4) one additional incentive allowed per BCC Chapter 20.40, as described below:
- Density Bonus Parking Standards: The Project would utilize the Density Bonus parking standards, which is a reduced parking ratio. Table 5 below shows the proposed parking breakdown:
TABLE 5 – PROPOSED PARKING BREAKDOWN
|
* covered or uncovered ** shared parking analysis |
Zoning Code Standard |
Density Bonus Standard |
|
Required Parking Spaces Studio One-Bedroom Two-Bedrooms Guest Spaces
Total |
1.5 per unit 1.75 per unit 2 per unit 0.2 per unit
242 (120 covered) |
1 per unit 1 per unit 1.5 per unit None
146 uncovered |
- Density Bonus Incentive: The Project would utilize one Density Bonus Incentive to waive the City’s Art in Public Places Ordinance requirement.
- Density Bonus Waivers: The Project would utilize five Density Bonus Waivers to modify various development standards, as shown in Table 6 below:
TABLE 6 – PROPOSED DENSITY BONUS WAIVERS
|
Development Standard |
Zoning Code (min./max.) |
Proposed |
|
Height |
60’ |
64’-4 (Top of roof) |
|
Rear Setback (57 Freeway) |
20’ |
First floor: 10’ Upper floors: 3’-6” |
|
Common Open Space |
100 sq. ft. per unit |
49.75 sq. ft. per unit |
|
Private Open Space |
75 sq. ft. per unit |
53 sq. ft. per unit |
|
Landscaping Building Perimeter |
5’ |
0’ to 5’ |
- BCC Incentives: The Project would utilize one incentive under BCC for deferred payment of development impact fees to certificate of occupancy.
Restaurant Building
The Project consists of a full rebuild of the existing 7,500-square-foot building currently occupied by Buca di Beppo (referred to as Building K), which would include demolition of Building K and construction of a smaller, 5,000-square-foot stand-alone restaurant building with a 1,101-square-foot outdoor dining area. The building design of the new building would be contemporary in design, consistent with the new apartment building proposed as part of the Project. The surrounding roadways and parking lot of future Building K would also be modified. The parking would be reconfigured as shown in sheet 6 of the attached Project Plans (Attachment E).
Comprehensive Sign Program Amendment
The Project includes an amendment to the Brea Plaza Shopping Center Comprehensive Sign Program to include new signage for the apartment building. The new signage would include a total of two sign types, including directional and addressing signs, as shown in Table 7 below:
TABLE 7 – PROPOSED APARTMENT BUILDING SIGNS
|
Sign Type |
Number of Signs |
Sign Dimensions |
Total Area |
Sign Location |
|
Project Name and Directory Stairwell sign |
Two |
15’ wide x 26’ tall overall |
390 sq. ft. overall |
South Building Elevation |
|
13’ wide by 26’ tall overall |
338 sq. ft. overall |
West Building Elevation |
||
|
Project Name Canopy Sign |
One |
17’-2” wide x 1’ tall |
17.17 sq. ft. |
South Canopy Elevations |
All signs would incorporate illumination, including halo lighting for a sleek, modern appearance. The wall-mounted stairwell sign, shown in Figures 4 below, on the south and west building elevations, would be visible from both the shopping center and the 57 Freeway. Designed to complement the contemporary aesthetic of the residential building, this signage would prominently display the Project name along with major shopping center tenants.
FIGURES 4 – APARTMENT BUILDING SIGN RENDERINGS
The Project Plans, Parking Study, Sign Program Plans, Project Narrative, Project Application, and Density Bonus Application are Attachments E, F, G, H, I, and J respectively.
ANALYSIS
General Plan Amendment No. 2024-01
The Project requires a General Plan Amendment to change the General Plan Land Use designation of the Project site from General Commercial to Mixed Use II. The Project is consistent with various goals and policies of the General Plan, including the City’s 6th Cycle Housing Element, as it would facilitate housing growth and assist in achieving the City’s RHNA allocation.
General Plan Goals and Policies
To plan for the present and future needs of the City, the General Plan provides goals and policies to guide development. The Project would adhere to the following goals and policies found in the General Plan.
- Goal CD-1 Provide a balance of land uses to meet the present and future needs of all residents.
The Project would adhere to Goal CD-1 by providing additional housing opportunities by providing rental residential dwelling units ranging from studio to two-bedroom dwelling units, including six allocated for extremely low-income households.
- Policy CD-1.5 Provide opportunities for development of housing that responds to diverse community needs in terms of density, size, location, design and cost; and
Policy CD-1.9 Encourage new development that is organized around compact walkable, mixed-use neighborhoods and districts to conserve open space resources, minimize infrastructure costs, and reduce reliance on the automobile
The Project would adhere to Policies CD-1.5 and CD-1.9 by creating a mixed-use, in-fill development, without affecting open space throughout the City. Brea Plaza is characterized by a horizontal mix of restaurant, retail, and office uses, and the Project would add residential opportunities that presently don’t exist in the vicinity. The Project would provide residents living at the site and in the surrounding areas the convenience of walking to shops, restaurants, grocery stores, and potentially to work, and would provide a pedestrian connection to neighboring property, thereby reducing vehicle reliance.
- Policy CD-26.3 Explore opportunities for mixed-use development projects on sites historically supporting commercial centers.
The Project would adhere to Policy CD-26.3 by allowing a mixed-use development on a site that has been developed and maintained as a commercial shopping center since 1976.
Zone Change No. 2024-01
The Project proposes to change the zoning of the site from C-G with a P-D Overlay to MU-II, which is the implementing zone of the proposed Mixed Use II General Plan land use designation proposed for the Project site. MU-II zone is intended for areas for intense, mixed-use urban environments that offer for the coordinated development of urban villages that offer a diverse range of complementary land uses in close proximity to one another. Either vertical or horizontal integration of uses is allowed, with an emphasis on tying together the uses with appropriate pedestrian linkages. Residential densities at the higher end of the scale will be allowed for developments that clearly integrate uses. The approximately 15.58-acre existing shopping center offers shopping opportunities through various types of retail, office, and restaurant uses, that create and support an employment base. The Project site has access to major roadways via Imperial Highway, and it is adjacent to the 57 Freeway. The Project would be compatible with the surrounding land uses, including the uses within Brea Plaza, which includes a mixture of residential and commercial land uses within a larger mixed-use development area. The apartment building would further enhance the intent of the MU-II Zone at the site by introducing 120 residential dwelling units. Therefore, the Project site is suited for the MU-II Zone.
In addition, as shown in Table 8 below, the Project complies with the MU-II zone development standards for residential density and nonresidential floor area ratio (FAR).
Table 8: MU-II Zone Development Standards
|
|
Zoning Code Standards (min./max.) |
Proposed |
|
Residential Density |
Minimum: 95 units (6.1 units / acre) |
120 units (7.7 units / acre) |
|
Maximum: 632 units (40 units / acre) |
||
|
Nonresidential FAR |
Maximum: 2.0 |
0.23 (158,691 sq. ft. / 678,229.2 sq. ft.) |
Density Bonus No. 2024-01
Pursuant to the State Density Bonus Law, the City is required to grant the Incentives and Waivers requested by qualifying housing developments unless the City finds, with substantial evidence, that the waivers or reduction of development standards would have a specific adverse impact upon health, or safety, and for which there is no feasible method to satisfactorily mitigate or avoid the specific adverse impact, would have an adverse impact on any real property that is listed in the California Register of Historical Resources, or would be contrary to State or Federal law. In addition, the City cannot require minimum parking standards that exceed the Density Bonus parking standards, if a qualifying housing development requests to utilize the parking standards provided in the Density Bonus Law. Based on the six extremely low-income units (five percent of total units) being provided by the Project, the Project is eligible for one Density Bonus Incentive, and an unlimited number of Waivers.
In addition, pursuant to BCC Section 20.40.060, an applicant who complies with providing affordable housing may request, and the City must grant, the number of incentives identified in Table 20.40.060.A. Based on the number of affordable units being provided, the Project is eligible for four incentives listed in Table 20.40.060.A.
As previously described in Density Bonus Law Requests Section above, the Project is requesting to utilize: 1) Density Bonus parking standards; 2) one Density Bonus Incentive to waive APP requirements; 3) five Density Bonus Waivers to modify development standards (height, rear setback, private and common open space requirements, and building parameter landscaping requirement); and 4) one additional incentive allowed per BCC Chapter 20.40 to defer development impact fees to prior to issuance of a certificate of occupancy. As further detailed in the Environmental Assessment Section below, the Project was found to not have a significant impact on health or safety and as such, the City must grant the requested Density Bonus Incentives and Waivers, and BCC incentive.
However, it is important to note that while the Project is utilizing the Density Bonus Waivers to reduce the building setback adjacent to the 57 freeway and this reduced setbacks was reviewed by Fire through a separate preliminary plan review and a recommended condition of approval is included to ensure emergency access. Additionally, while requesting to reduce the minimum private and common open space requirements and landscaping requirements for building parameters, the Applicant will be required pay Park Development Impact Fee ($5,611 per unit). Such additional funds could be used to improve existing City parks.
Precise Development 2024-01 and CUP No. 2024-03: Multi-family Residential Use and Construction
In MU-II Zoning district, a multi-family residential use requires the approval of a conditional use permit by the Planning Commission. In addition, a PD review is required for the residential construction of five or more units. The intent of PD review is to ensure that the Project complies with the applicable development standards and also allows for architectural review of the for-sale residential condominium buildings and outdoor gathering space.
As proposed, and conditioned, the Project represents quality design and meets the intent and requirements of the MU-II Zone, which requires a vertical or horizontal integration of residential and non-residential uses. In addition, the Project site is adequate in size and shape to accommodate the proposed development. The Project complies with the development standards of MU-II Zone applicable to the Project, as shown in Table 9 below, except for the standards that are being modified through the State Density Bonus Law and the City’s Affordable Housing Ordinance:
TABLE 9 – Compliance with Development Standards
|
Development Standard |
Zoning Code Standards (min./max.) |
Proposed |
|
Minimum Project Size |
2,500 sq. ft. |
162,071 sq. ft. |
|
Density |
6.1 to 40 units / acre |
7.7 units / acre |
|
Floor Area Ratio (FAR) |
2.00 |
0.23 |
|
Height |
60’ |
*64’-4” (Top of roof) |
|
Building Setbacks Front (S. Associated Road) Street Side (Imperial Highway) Interior Side Rear (State Route SR-57) |
15’ 15’ 10’ 20’ |
865’-6” 437’-8” 10’ *3’-6” to 10’ |
|
Landscape Setbacks Interior Side Rear (State Route SR-57) Building Perimeter |
Interior Side: 5’ Rear: 5’ Building Perimeter: 5’ |
Interior Side: 10’ Rear: 10’ Building Perimeter: 0’ to 5’ |
|
Common Open Space |
100 sq. ft. per unit |
49.75 sq. ft. per unit* |
|
Private Open Space |
75 sq. ft. per unit
|
53 sq. ft. per unit* |
|
Parking |
1,019 for the Project site*** |
789 for the Project site* |
|
*Considered as compliant due to Density Bonus Provisions **Considered as compliant due to shared parking analysis *** Density Bonus parking standard applied |
||
The Project was reviewed by various departments, including the Fire Department, Police Department, Public Works Department, and the Building & Safety Division. The Project is required to meet all Building and Fire codes and standards, thereby assuring public health, safety, and welfare. To further ensure the Project would be compatible with surrounding uses and not adversely affect the public, health, or general welfare, staff has prepared draft Conditions of Approval (Attachment B). Notably, the recommended condition includes requiring the applicant to submit a parking management plan to implement parking strategies for moderating demand and requiring any future land uses to demonstrate compliance with the parking requirements.
CUP No. 2024-04: Shared Parking Analysis
BCC Section 20.08.040.G.1 provides an option to modify off-street parking requirements for multi-family developments and nonresidential developments through the CUP process. A parking demand study for a multi-family development may utilize the ULI’s Shared Parking methodology or any other reasonably similar methodology shown to be applicable if the project is part of a mixed-use development conducive to shared parking. The Project proposes to add a residential building to an existing shopping center to create a mixed-use environment and includes features such as pedestrian connectivity and long-term bicycle parking to promote active transportation.
The LSA Parking Study, as explained in the previous section of this report, concludes that, when considering the Project’s actual parking demand and the effects of shared parking, the Project would provide sufficient parking to meet peak parking demand of the Project site, including December weekends. The parking demand strategies identified for the Project site include providing unreserved parking for Brea Plaza and residents and providing overnight parking permits to residents. A recommended condition of approval requires a parking management plan to be submitted for the Project to implement such strategies, in addition to other strategies mentioned in the Parking Study such as Parking management/enforcement and valet parking, if determined necessary. Therefore, the Applicant’s request for a CUP to allow parking modification as it relates to shared parking is consistent with the Zoning Code.
CUP No. 2025-05: Amendment to the Brea Plaza Shopping Center Comprehensive Sign Program
Pursuant to BCC Section 20.28.045, approval of a CUP is required for comprehensive sign program amendments that deviate from BCC Chapter 20.28. The Project includes a CUP request for a comprehensive sign program amendment to Brea Plaza as part of the new signage proposed on the apartment building. The building-mounted sign that wraps around the southwest corner of the apartment building stairwell would be visible from the 57 Freeway and to the south. It would feature the apartment building’s name and major tenant’s in the shopping center. Generally, signs are only permitted for businesses that occupy a subject building. The proposed signage is complimentary to the modern design of exterior improvements within Brea Plaza and will also advertise major tenants in a shopping center at the corner of two major highways.
ENVIRONMENTAL ASSESSMENT
Pursuant to the California Environmental Quality Act (CEQA) as amended (Public Resources Code Section 21000 et seq.) and the CEQA Guidelines (California Administrative Code, Title 14, Section 15000 et seq.), an addendum to the previously certified EIR for the Project (EIR SCH No. 2020079022 Addendum No. 1) was prepared for the proposed Project, in accordance with Section 15164(a) of the CEQA Guidelines, based on findings that the Project requires changes and/or additions to the previously certified EIR but none of which would create a new or more significant impact.
EIR SCH No. 2020079022 Addendum No. 1 (Addendum) concluded that the Project is a reduced-scale version of the Brea Plaza Expansion Project assessed in the previously certified FEIR and does not introduce new significant environmental impacts or substantially increase the severity of previously identified impacts. Since the modified project reduces the overall building size, unit count, and parking demand, the Addendum found that the Project results in lesser environmental impacts than those analyzed in the previously certified FEIR. Therefore, the existing FEIR remains valid, and the Addendum sufficiently addresses the environmental review for the revised project.
In addition, the Project-specific MMRP documents how and when the relevant mitigation measures adopted by the Lead Agency as part of the MMRP for the previously certified FEIR, as well as certain project-specific enforceable conditions of approval and/or refinements to related aspects of implementation for the same, will be implemented for the Project and ensures that potential environmental impacts associated with the proposed project are consistent with the impact conclusions set forth in the previously certified FEIR as identified and explained more fully in the Addendum Memorandum. The mitigation measures pertaining to the Project are required to be implemented as specified in the Mitigation Monitoring and Reporting Program (MMRP), and have been included as part of the Conditions of Approval for the Project.
The Addendum can be accessed via following link: https://www.cityofbrea.gov/DocumentCenter/View/17716/Brea-Plaza-Residential-Project-Addendum-Memorandum---COMBINED
PUBLIC NOTICE AND COMMENTS
This Project was noticed in accordance with the City’s public noticing requirements, which involved mailed notices sent to property owners within 500-feet of the Project site, and publication in the Orange County Register. The public hearing notice for the Project is provided as Attachment K. As of the writing of this report, staff has not received public comments.
CONCLUSION
For the reasons discussed above and the information attached to this report, the Project would conform with all the requirements of the General Plan, including the City’s 6th Cycle Housing Element, and the provisions of the BCC. As analyzed in the Addendum, the proposed recommendation would not have an adverse effect on public, health, safety, or general welfare. Therefore, staff recommends that the Planning Commission adopt the resolution (Attachment A) recommending that the City Council approve the Project and the Addendum prepared for the Project.
RESPECTFULLY SUBMITTED
Joanne Hwang, AICP, City Planner
Prepared by: Jessica Newton, Senior Planner
Attachments
Attachment A- PC Resolution.pdf
Attachment B- Draft Conditions of Approval.pdf
Attachment C- Technical Background.pdf
Attachment D- Vicinity Map.pdf
Attachment E- Project Plans reduced.pdf
Attachment F- Parking Study.pdf
Attachment G- Brea Plaza Apartment Sign Program.pdf
Attachment H- Project Narrative.pdf
Attachment I- Project Application.pdf
Attachment J- Density Bonus Application.pdf
Attachment K- Public Hearing Notice.pdf